Nachfolgend finden Sie Neuigkeiten aus Edelfingen.
16.04.2026
Verkehrsrechtliche Anordnung
Ab Montag, 20.04.2026 bis einschließlich Freitag, 29.05.2026
ist die Fahrbahn der Straße Altenberg für den Verkehr halbseitig gesperrt.
Es handelt sich um eine Wanderbaustelle.
Grund sind Aufgrabungen für Verlegung von Strom- und Wasserleitungen.
Wir bitten um Ihr Verständnis.
16.04.2026
Verkehrsrechtliche Anordnung
Ab Donnerstag, 30.04.2026 09:00 Uhr bis einschließlich Freitag, 01.05.2026 16:00 Uhr ist die Straße Mittlere Straße komplett gesperrt.
Der Verkehr wird umgeleitet über Alte Frankenstraße – Theobaldstraße – Landstraße – Ratsstraße (Einbahnstraße).
Anliegerverkehr ist frei bis Sperrung.
Grund ist das Maibaumfest.
Wir bitten um Ihr Verständnis.
Wir bitten um Ihr Verständnis.
15.04.2026
Stadtradeln 2026 – Edelfinger Stopfzwiebel
Auch in diesem Jahr findet im Zeitraum von 01.05.2026 – 21.05.2026 wieder das Stadtradeln statt.
Simone Bauer hat die Gruppe „Edelfinger Stopfzwiebel“ initiiert.
Eingeladen sind alle, die Spaß am Radfahren haben. Macht mit und meldet euch an für die „Edelfinger Stopfzwiebel“ unter http://www.stadtradeln.de/bad-mergentheim.
Ladet die STADTRADELN-App http://www.stadtradeln.de/app auf das Smartphone und los geht’s.
Für die „Edelfinger Stopfzwiebel“
Simone Bauer und Ortsvorsteher Detlef Heidloff
01.04.2026
Neueröffnung Edelfinger Jugendclub

31.03.2026
WhatsApp Kanal „I ❤️ Edelfingen“
Es ist endlich so weit, die Gemeinde Edelfingen hat einen WhatsApp Kanal.
Wer dem Kanal folgen möchte, einfach den Link anklicken
https://whatsapp.com/channel/0029Vb7C0Pe3LdQYRwUjeO1d
oder den QR-Code scannen

06.03.2026

04.03.2026
Änderung der Kehrbezirksgrenzen gem. § 7 Schornsteinfeger-Handwerksgesetz zum 01.02.2026
Die Bestellung des bisherigen Inhabers unseres Kehrbezirkes, Bezirksschornsteinfegermeister Herr Ruben Frei, wurde zum 01.02.2026 aufgehoben.
Edelfingen wurde aufgrund dessen dem Kehrbezirk Main-Tauber-Kreis Nr. 11 zugewiesen.
Seit 01.03.2026 ist Bezirksschornsteinfegermeister Herr Karsten Swartjes, Hauptstr. 7, 97947 Grünsfeld nach oben genanntem Gesetz für unseren Kehrbezirk zuständig.
25.02.2026
Neue Parkplatzregelung in Edelfingen
Ab sofort gilt in Edelfingen auf den Parkplätzen „Am Gottesacker“, in der „Mittleren Straße“, der „Ratsstrasse“ (Rathaus) sowie in der „Alten Frankenstrasse“ (Waaghäuschen) eine neue Parkplatzregelung. Die Parkzeiten wurden hier von Montag bis Freitag zwischen 7 Uhr und 17 Uhr auf 2 Stunden begrenzt.
Ziel dieser Regelung ist es, die Verfügbarkeit von Stellplätzen zu erhöhen und ein Dauerparken zu vermeiden. Allen Verkehrsteilnehmenden soll damit die Möglichkeit gegeben werden, ihr Auto zeitweise abstellen zu können.
Verstöße gegen die neuen Regelungen können mit Bußgeldern geahndet werden.
Wir bitten um Kenntnisnahme und Beachtung.
16.02.2026
Neue Strukturen in Edelfingen geschaffen

16.02.2026
Flurbereinigungsverfahren Bad Mergentheim – Edelfingen – Bodenschätzung –
Für die landwirtschaftlich genutzten Flächen der Gemarkung Edelfingen wurde im Jahr 1954 (bzw. 1983 für die Steillagen westlich der Bahnlinie) letztmalig nach dem Bodenschätzungsgesetz die Ertragsfähigkeit festgestellt.
Durch das erfolgte Flurbereinigungsverfahren „Bad Mergentheim-Edelfingen“ (Regelverfahren nach § 1 FlurbG) müssen die bisherigen Schätzungsergebnisse überprüft und an die neuen Flurstücksgrenzen angeglichen werden. Dazu wird eine Nachschätzung nach § 11 des Bodenschätzungsgesetzes durchgeführt.
Die Feldarbeiten zur Begutachtung der Böden beginnen im März 2026.
Die Ergebnisse der Nachschätzung werden zur allgemeinen Einsichtnahme offen gelegt. Der Termin zur Einsichtnahme wird allgemein bekannt gegeben.
29.01.2026
Meldung defekter Straßenbeleuchtung
Die defekte Straßenlaterne können Sie entweder direkt bei dem Stadtwerk Tauberfranken melden über folgende Seite:
https://stadtwerk-tauberfranken.de/service/meldungen/strassenbeleuchtung/
Am schnellsten geht es mit dem QR-Code:

Oder Sie melden die defekte Straßenlaterne bei uns auf der Verwaltungsstelle unter Angabe der Straße und Hausnummer, wir leiten dies dann weiter.
08.12.2025
Heimat Vor-Ort: „Überall ist etwas Größeres entstanden“
Bad Mergentheim blickt zurück auf den Veranstaltungs-Marathon zu 50 Jahre Große Kreisstadt / Ortsvorsteher bestätigen starken Zuspruch und Begeisterung
Bad Mergentheim. Mit dem Veranstaltungsreigen „Heimat Vor-Ort“ hat Bad Mergentheim das Jubiläum 50 Jahre Große Kreisstadt gefeiert: in der Kernstadt und in 13 Teilorten. Zum Abschluss ziehen alle Beteiligten eine große Bilanz.
Seit dem Auftakt beim Neujahrsempfang im Januar konnten Bürgerinnen, Bürger und Gäste fast jeden Monat eine oder mehrere Veranstaltungen im Zeichen des Jubiläums erleben – 16 Stück waren es insgesamt. Und obwohl niemand genau Buch geführt hat, lässt sich sagen: Tausende kamen, selbst wenn man Großveranstaltungen wie das Stadtfest herausrechnet. Vielerorts war der Zuspruch größer als erwartet und die Verantwortlichen mussten improvisieren, um allen Besucherinnen und Besuchern gerecht zu werden. So war dann mitunter ein Kuchen-Buffet bereits am frühen Nachmittag verspeist oder es hieß „Schlange stehen vorm Wasserturm“.
„Mit dem Versprechen ‚Lebensfreude beginnt hier‘ haben wir unser Stadtmotto im Jubiläumsjahr leicht abgewandelt auf den Ortseingangs-Bannern platziert. Die abwechslungsreichen Veranstaltungs-Angebote haben dieses Versprechen wahr gemacht und zugleich uns selbst vor Augen geführt, dass wir als Große Kreisstadt in 50 Jahren in Vielfalt zusammengewachsen sind“, sagt Oberbürgermeister Udo Glatthaar. „Trotz aller charakterlichen Eigenheiten eines jeden Stadtteils wurde damit etwas Verbindendes spürbar, das uns auch durch die noch zu schreibenden neuen Kapitel der Stadtgeschichte tragen wird.“
Der Rückblick zeigt deutlich, wie abwechslungsreich das Jubiläumsjahr war: Da bekamen große Feste neue Akzente (Stadtfest Bad Mergentheim, Weinfest Markelsheim, Maibaumfest Althausen), es wurden örtliche Jubiläen zu Doppel-Jubiläen erweitert (800 Jahre Neunkirchen, 50 Jahre Spielvereinigung Apfelbach) und religiöses Brauchtum gepflegt (Fronleichnamsfest in Rengershausen). Dorffeste wurden zu kleinen Stadtfesten (Wachbach, Hachtel), Grenzen erwandert (Dainbach, Edelfingen) und Musik erklang (Sommernacht der Blasmusik in Löffelstelzen).
Wer hätte vor „Heimat Vor-Ort“ gedacht, was die auf keiner Straßenkarte verzeichnete Stuppacher „Boochgasse“ ist und welches Potenzial als Festmeile in ihr schlummert? Oder dass es Dörtel, Herbsthausen, Rot und Schönbühl gemeinsam gelingt, einen die Dörfer verbindenden Wanderweg zum Freiluft-Erlebnispark zu machen? All das und viel mehr wurde 2025 möglich. Besonders beeindruckend war es aus Sicht der Stadt, dass die Verantwortlichen nahezu durchweg darauf geachtet hatten, alle Generationen anzusprechen und beispielsweise besondere Angebote für Kinder zu schaffen.
„Manchmal braucht es eben einen kleinen Anreiz und Anstoß, um das Besondere in der unmittelbaren Nachbarschaft zu entdecken“, sagt Kersten Hahn, Fachbereichsleiter für Bildung, Kultur & Tourismus. „Mit ‚Heimat Vor-Ort‘ haben wir bereits im Heimattage-Jahr 2016 das dazu passende Format kreiert und es freut mich sehr, dass die Neuauflage mindestens genauso gut funktioniert hat.“ Die verbindende Klammer habe – da seien die Rückmeldungen eindeutig – dafür gesorgt, dass bei den traditionellen und neuen Veranstaltungen nicht nur das erwartete Publikum zusammenkam, sondern allerorten etwas Größeres entstand.
Stimmen einiger Ortsvorsteher unterstreichen dies stellvertretend für alle 13. So sagt Karin Tremmel (Rengershausen): „Alle Veranstaltungen waren mit Liebe zum Detail gemacht. Es lohnt sich immer, nach Bad Mergentheim zu fahren, aber auch mal in die Stadtteile rauszugehen und Neues zu entdecken.“ Die Aktionen hätten sie an das frühere Fußball-WM-Motto „zu Gast bei Freunden“ erinnert. Andreas Lehr (Markelsheim) zieht das Fazit, das Jubiläum habe „in beeindruckender Weise die ganze Vielfalt unserer Stadt und ihrer Stadtteile sowie das enorme Engagement unserer Bürgerschaft“ aufgezeigt. „Es hat aber auch deutlich gemacht, wie wichtig der Erhalt von Eigenständigkeit und von lebendigen Strukturen vor Ort ist. Bad Mergentheim ist eine starke Gemeinschaft durch das vertrauensvolle Miteinander von Kernstadt und Stadtteilen.“
Detlef Heidloff (Edelfingen) zeigt beispielhaft auf, wie aus den entwickelten Formaten im Ort etwas Bleibendes entstehen kann, denn die „sehr gut angenommenen“ Grenzwanderungen mit Informationen sind in Edelfingen inzwischen als feste Routen beschildert und werden auf der Internetseite des Teilorts beworben. „Ich habe Anfragen von Gruppen, mit der Bitte, die Touren zu führen. Das wurde bereits einmal mit einer Gruppe aus Rot durchgeführt“, berichtet Detlef Heidloff.
In den Eindrücken von den Einzel-Veranstaltungen kommt zum Ausdruck, dass viele schöne Momente das Jubiläumsjahr durchzogen. „Der Höhepunkt unserer Serenade war der von OB Udo Glatthaar dirigierte und von den Musikkapellen Löffelstelzen und Markelsheim gemeinsam gespielte Deutschmeister-Regimentsmarsch“, ruft Rainer Blank (Löffelstelzen) im Rückblick auf die Sommernacht der Blasmusik in Erinnerung. Erwin Landwehr (Stuppach) sieht das „Boochgassefeschd“ als Riesenerfolg: „Die örtlichen Vereine haben zusammen mit der Ortsverwaltung einen Meilenstein gesetzt, der nicht so leicht zu toppen ist.“ Er vergisst aber nicht – wie viele seiner Amtskollegen – auch die „tollen Erlebnisse“ in den anderen Stadtteilen zu würdigen.
Denn die Stimmung war allerorten bestens, was Björn Wirsching (Dainbach) in der Rückschau auf das „Sym-badische Dorffest“ beispielhaft zum Ausdruck bringt: „Das angebotene Programm mit Grenzwanderung und toller musikalischer Umrahmung erfreute die Bürgerinnen und Bürger aus unserem Ort und alle Gäste aus nah und fern bis tief in die Nacht.“ Oliver Adelmann (Althausen) lobt die gute Gelegenheit, sich als Teilort zu präsentieren, gerade „weil sehr viele Bürgerinnen und Bürger der Großen Kreisstadt die Stadtteile besucht haben, die sonst eher nicht auf den Dörfern unterwegs sind“. Zuletzt beim Althäuser Winterzauber, der Abschluss-Veranstaltung von „Heimat Vor-Ort“, habe er viele Komplimente von Besucherinnen und Besuchern aus der Kernstadt entgegennehmen dürfen. Weiter betont er die Wertschätzung, die die Ortschaft insgesamt allein durch deren Kommen erfahren habe.
In Herbsthausen und Rot, wo die Verantwortlichen unter dem Motto „Schritt für Schritt zusammenwachsen – Gemeinsam auf neuen Wegen“ kooperiert hatten, sind diese immer noch begeistert vom Rückhalt der vielen Partner und der Bevölkerung. Das Engagement war mit Hunderten Besuchern und viel Anerkennung für die fröhliche und offene Atmosphäre belohnt worden. „Besonders überrascht war ich, dass unser Wasserturm – obwohl auch schon in die Jahre gekommen – nichts von seiner Anziehungskraft verloren hat“, sagt Wilfried Zeihsel (Herbsthausen). Und sein „Nachbar“ Siegfried Kreuser ergänzt: „Es macht stolz zu sehen, dass wir gemeinsam ein Fest auf die Beine stellen konnten, das so gut angenommen wurde und unser Zusammenwachsen sichtbar macht.“
Reinhard Brand (Hachtel) fasst den Besucher-Zuspruch beim Dorffest mit den Worten „beinahe überrannt“ zusammen und merkt augenzwinkernd an, dass Oberbürgermeister und Ortsvorsteher sich an diesem Tag „nicht von der Seite wichen“, um einmal mehr gutes Miteinander zu leben und den Dialog mit der Bürgerschaft zu suchen, während die 70 Oldtimer-Schlepper eine beeindruckende Kulisse gebildet hätten. Nicht zuletzt habe das Fest dank des größeren Rahmens den Vereinen sogar den besten Umsatz in der Geschichte beschert. „Damit schließt sich der Kreis: Die Gemeinschaft zwischen Kernstadt und Stadtteilen ist gut, tut gut und wurde vor 50 Jahren genau zum richtigen Zeitpunkt gut gemacht“, so Reinhard Brand abschließend.
Um bei diesem Ideen-Feuerwerk die eigentliche Geschichte und den historischen Anlass nicht zu kurz kommen zu lassen, war auch das Stadtarchiv eingebunden. Im Frühsommer wurde im Kulturforum die Ausstellung „50 Jahre Große Kreisstadt“ gezeigt, die rund 1.000 Besucherinnen und Besucher verzeichnete. Gerade der Blick zurück zu den Anfängen der Großen Kreisstadt machte deutlich: Es war ein nicht immer einfacher oder gar harmonischer Weg der Eingemeindung und des Zusammenschlusses. Doch es war der Ausgangspunkt einer starken Stadtentwicklung, gemeinsamen Wachstums und eines heute selbstverständlichen Miteinanders.
Udo Glatthaar und Kersten Hahn, die beide kaum eine Heimat-Vor-Ort-Veranstaltung in diesem Jahr verpasst haben, bedanken sich herzlich bei der Ortsvorsteherin und den Ortsvorstehern mit ihren Mitstreitern, deren Engagement das Format getragen und beflügelt habe. In den Dank schließen sie das Team der Tourist Information ein, das für die Planung und Koordination mit verantwortlich war, sowie alle Besucherinnen und Besucher.
Für letztere gilt es nun, bis zum Jahresende ihre Stempel-Karte aus der Programm-Broschüre bei der Tourist Information im Alten Rathaus abzugeben. Denn auf jeder Heimat-vor-Ort-Veranstaltung war die Tourist Information präsent und stempelte für Anwesende einen Ort ab. Wer mindestens neun Stempel gesammelt hat, nimmt an einer Verlosung teil, bei der man Dutzende besondere Erlebnisse in Bad Mergentheim und seinen Stadtteilen gewinnen kann. stv

Zusammengewachsen: Die Ortsvorsteher-Runde Bad Mergentheims – das Gruppenbild entstand im Mai bei der Eröffnung der Jubiläums-Ausstellung – blickt positiv auf die „Heimat-Vor-Ort“-Reihe – und den großen Zuspruch für die Stadtteil-Formate. (Bild: Stadt Bad Mergentheim)
24.11.2025
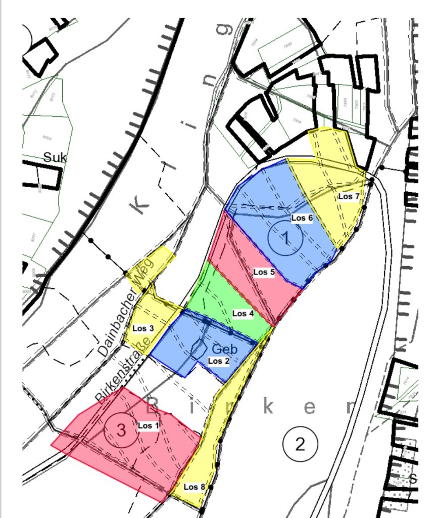
Losholzversteigerung Unterbürgerwald
Bereits Ende Oktober wurde der Hieb in den Abteilungen 1 Storchennest und 3 Birken im Unterbürgerwald begonnen. Der Hieb zielte vorwiegend auf die Douglasie, der umliegende junge Buchen-/Lärchenbestand wurde durchforstet, die Fichte aufgenutzt. Das Losholz soll nun höchstbietend versteigert werden.
Es stehen 8 Lose zur Verfügung, wobei Los 7 und 8 nadelholzlastig sind. Auch in den anderen Losen liegt teils einiges an Nadelholz. Vor allem in den Losen 5 und 6. In den niedrigeren Nummern geht es teils sehr steil bergauf, hier sollte evtl. bergab oder von zwei Seiten gearbeitet werden. Der Eichenjungwald zwischen Los 1 und Los 2 wurde bereits letztes Jahr gemacht und ist nicht Teil der Versteigerung.
Es können Seilwinden eingesetzt werden. Es muss jedoch sichergestellt sein, dass die Stammfüße nicht beschädigt werden. Es dürfen nur die auf dem Plan eingezeichneten Rückegassen genutzt werden. Alte Querwege dürfen nicht genutzt werden.
Alle Gebote sind bindend. Die Lose sollen bis ins Frühjahr 2026 aufgearbeitet sein.
Wir treffen uns am
Freitag, den 5.12.25 um 17.00 Uhr im Bürgersaal Rathaus Edelfingen
Es freut sich auf eine lebhafte Versteigerung
Ihr Förster Timo Renz


06.11.2025
Generalprobe für den neuen Maibaumständer in Edelfingen
Jugendclub und Ortsvorsteher weihen aufwändige Konstruktion und erneuerten Dorfplatz ein
In 850 Arbeitsstunden und weitgehend in Eigenregie hat der Edelfinger Jugendclub (EJC) mit seinen Unterstützern einen neuen Maibaumständer eingebaut und Teile des Dorfplatzes erneuert. Jetzt ist – ausnahmsweise mal außerhalb des Monats Mai – der erste Baum gestellt und damit die Generalprobe erfolgreich absolviert worden.
Im Juli war mit großem Aufwand und schwerem Gerät das tonnenschwere Fundament eingehoben worden. Die neue Vorrichtung kann Maibäume mit einer Höhe von bis zu 26 Metern und einem Durchmesser bis zu 35 Zentimetern aufnehmen. Neben der Standsicherheit sorgt die schwenkbare Spannvorrichtung aus feuerverzinktem Stahl auch für mehr Sicherheit beim Aufstellen des Baumes bei der starken Gemeinschaftsleistung von Hand.
Viel Miteinander gab es auch während der siebenwöchigen Bauzeit. Unter Anleitung erledigten die Mitglieder des Jugendclubs fast alles selbst: von der Vorbereitung des Areals über das Ausheben der Baugrube bis hin zur Fertigstellung der Fläche. Der untere Teil des Dorfplatzes wurde gleich mit erneuert. Besonders viel Hilfe bekamen die EJC-Mitglieder dabei von Elmar Rupp, der Planung, Bauleitung und Überwachung übernommen hatte, sowie von Ortsvorsteher Detlef Heidloff, der das Projekt durchgängig begleitete und unterstütze. Daneben brachten sich auch ortsansässige Unternehmen ein, wobei „Leonhard Weiß“ sogar große Baumaschinen wie Bagger und Rüttelplatte zur Verfügung stellte. Für den Jugendclub bedankt sich das Vorstandsteam um Theo Läpple, Rainer Stephan und Nils Kreß sehr herzlich beim Gemeinderat für die bereitgestellten Mittel für den neuen Maibaumständer, bei der Verwaltung – insbesondere Tiefbau und Bauhof – für die Zu- und Mitarbeit, bei allen Unterstützern und insbesondere bei Elmar Rupp für seinen großen persönlichen Einsatz. Ortsvorsteher Detlef Heidloff schließt sich diesem Dank an und lobt die „tolle Gemeinschaftsleistung“ des Edelfinger Jugendclubs. Er hat über die eigenen Bewirtschaftungsmittel noch neue Sicherheits-Poller für den Dorfplatz angeschafft, so dass dieser sich nun für große Veranstaltungen und kleine Begegnungen wieder ansprechend präsentiert.
Die Neuanschaffung war notwendig, weil der rund 40 Jahre alte bisherige Maibaumständer Beschädigungen aufwies und das Edelfinger Maibaumfest deshalb in diesem Jahr mit einem „Mini-Baum“ auskommen musste. Das soll sich ab 2026 wieder ändern, schließlich ist das Maibaumfest nicht nur die größte Veranstaltung des Stadtteils, sondern Edelfingen ist einer der ganz wenigen Orte der Region, wo der Maibaum noch per Hand und ohne maschinelle Hilfe aufgestellt wird. Für das traditionelle Spektakel sind etwa 30 Personen erforderlich, die dafür sorgen, dass sich der rund 20 Meter lange, festlich geschmückte Maibaum zum Himmel streckt.

Der Probe-Maibaum steht, im Wonnemonat 2026 wird dann wieder groß gefeiert: Über den Abschluss der Arbeiten und die geglückte Generalprobe freuen sich die Mitglieder des Jugendclubs gemeinsam mit Elmar Rupp (Mitte mit Bilderrahmen) und Ortsvorsteher Detlef Heidloff (Mitte). (Bild: Stadt Bad Mergentheim)
31.10.2025

(Bericht FN 30.10.2025)
Nähere Informationen aus der FN/17.10.2025:

06.10.2025
Festakt und Grenzwanderung am 03.10.2025 in Edelfingen
Von Peter D. Wagner
Edelfingen. Das 50-jährige Jubiläum „Große Kreisstadt Bad Mergentheim“ wird heuer in sämtlichen Stadtteilen gefeiert. Als herbstliche Fortsetzung dieses Reigens lud der mit rund 1.600 Einwohnern zweitgrößte Ortsteil Edelfingen am Freitag dazu ein, den Feiertag mit einer Festlichkeit in der ganztägig bewirteten Turn- und Festhalle sowie mehreren geführten Grenzwanderungen genussvoll und aktiv zu gestalten.
„Nach Anfangsschwierigkeiten in dieser ‚Vernunftsehe‘ hat man sich zusammengerauft und mittlerweile kann man sagen, dass sich die Beziehung der Gemeinde Edelfingen und der Großen Kreisstadt Bad Mergentheim gefestigt hat – zwar mit Reibungspunkten, die jedoch in einer guten Beziehung einfach dazugehören“, konstatierte Edelfingens Ortsvorsteher Detlef Heidloff am Mittag bei der offiziellen Eröffnung. Dazu hieß er neben Oberbürgermeister Udo Glatthaar und Tourismusdirektor Kersten Hahn unter anderem zahlreiche Ortsvorsteher aus anderen Stadtteilen sowie zwei Gäste aus Edelfingens französischer Partnergemeinde Sainte-Marie-du-Mont willkommen.
„Edelfingen war eine attraktive Braut mit einer sehr guten Mitgift“, erläuterte der Ortsvorsteher anhand einiger Exempel wie etwa die 1970 neu erbaute Turn- und Festhalle oder das 1971 ausgewiesene Gewerbegebiet „Im Abelt“. Zur „Goldenen Hochzeit“ zwischen Edelfingen und Bad Mergentheim gebe es zwar weder einen Ehering noch Küsse, wie Heidloff launig hervorhob, jedoch überreicht er Glatthaar als Erinnerungsgeschenk an dieses Jubiläumsfest eine Tasse mit der Aufschrift „I Love Edelfingen“.
Als Beispiele für Projekte, mit denen Edelfingen in den vergangenen Jahren in Zusammenarbeit mit die der Stadt und dem Gemeinderat zukunftsgerecht vorbereitet wurde, nannte der Ortsvorsteher unter anderem den Campus „Am Taubergrund“. „Das große Sorgenkind ‚Verkehrskonzept Theobaldstraße‘ muss als flankierende Maßnahme zur Landesgartenschau 2034 dingend angegangen werden“, appellierte Heidloff.
Udo Glatthaar zeigte sich begeistert über den sehr regen Besuch in der Halle und die großen Teilnehmerzahlen bei den Grenzwanderungen. Zudem dankte er allen Organisatoren und Helfern, die diesen Tag ermöglichten – insbesondere dem Ortschaftsrat und dem Förderverein “Aktives Edelfingen“ sowie dem Ortsvorsteher und Vereinsvorsitzenden Detlef Heidloff. Die 50 Jahre des Zusammenwachsens zur Großen Kreisstadt bezeichnete der OB als eine gelungene und erfolgreiche Epoche. „Dass Edelfingen heute aus so vielen Perspektiven betrachtet werden kann, ist eine großartige Leistung, die auf viel Arbeit und Engagement beruht“, bilanzierte er anerkennend.
„Wir leben in einer Zeit in der Demokratie und gutes Miteinander in Frage gestellt sowie Frieden keine Selbstverständlichkeit ist. Lassen Sie uns Mauern einreißen, wo sie Hürden sind, und Brücken bauen, wo Gräben sind“, betonte der OB speziell anlässlich des „Tags der Deutschen Einheit“ sowie in Erinnerung an die deutsche Wiedervereinigung.
Reizvolle Perspektiven und spannende Informationen bekamen am Vormittag und Nachmittag die insgesamt mehreren hundert Teilnehmer von Klein bis Groß bei den Grenzwanderungen offeriert, die jeweils mit Start- und Zielpunkt vor der Edelfinger Turn- und Festhalle in drei unterschiedlich langen Rundtouren sowie für verschiede Zielgruppen angeboten wurden. Als Gemeinsamkeit sie orientierten sie sich an den Gemarkungsgrenzen des Ortes.
Die als „Für Jedermann“ überschriebene „Ost-Route“ führte auf rund 8,5 Kilometern durch das Taubertal zur Gemarkungsgrenze Bad Mergentheim ins ursprüngliche Weintal „Mergelter“. Nach einem kurzen Abstecher auf die Gemarkung Löffelstelzen ging es in Richtung Geinhartshütte, wo sich den Wandernden großartige Ausblicke boten und eine Stärkung eingenommen werden konnte, bevor es entlang der Gemarkungsgrenze Unterbalbach weiter und von da zurück zum Ausgangspunkt ging.
Die vom Ortsvorsteher geführte „West-Route“ wurde als „Die Anspruchsvolle“ tituliert und war mit rund zehn Kilometern die längste. Zu Beginn stellte Heidloff den in bürgerschaftlicher Eigenleistung angelegten Tauberstrand „Gänsewiesle“ und die 2009 erbaute neue Tauberbrücke vor. Danach galt es, etliche Höhenmeter zu bewältigen, worauf die Teilnehmer dafür mit wunderbaren Ausblicken auf Edelfingen und Bad Mergentheim belohnt wurden, bevor die Gemarkungsgrenze im „Birken“ erreicht wurde. Anschließend erreichten die Wandernden kurz vor der mittelalterlichen Grabstätte im Theobaldswald einen historischen Dreimärker-Grenzstein, der zusätzlich die epochale Grenze zwischen Württemberg und Baden markiert.
„Die Grenzsteine sind geschützte Kulturdenkmäler, die teilweise aus dem 18. Jahrhundert stammen. Wer wusste, wo sein Land aufhörte, wusste ebenso, wo sein Einfluss begann – und dies war im mittelalterlichen Alltag oft überlebenswichtig“, erklärte Heidloff. Weiter ging es entlang der Gemarkungsgrenze Dainbach bis zur Forsthütte, an der Verpflegung wartete. Entlang der badischen Grenze mit vielen historischen Grenzsteinen sowie zwischendurch prächtigen Ausblicken auf die Weinberge bis nach Beckstein führte der Weg zurück zur Festhalle.
Damit wirklich alle Interessenten an einer der Grenzwanderungen teilnehmen konnten, gab es noch eine Vier-Kilometer-Tour namens „Die Familienfreundliche“. Diese wurde so ausgewählt, dass sie beispielsweise auch mit Kinderwagen oder Buggy komfortabel absolviert werden konnte. Außerdem war Spaß sowohl für die Kleinen als auch Großen garantiert. Die Kreisjägervereinigung Mergentheim präsentieren unter Regie von Lisa Wiebers ihren Lernort „Natur-Anhänger“, die Naturschutzgruppe Taubergrund und Vorstandsmitglied Elmar Patermann stellten das Naturdenkmal „Auenwäldchen“ sowie die angrenzenden Streuobstwiesen vor.
Ebenfalls Bestandteil des Festtages in der Turn- und Festhalle war eine Ausstellung über die Eingemeindung von Edelfingen in die Große Kreisstadt Bad Mergentheim. Damit wurde eine Zeitreise ermöglicht, die auf eine Präsentation des Stadtarchivs zurückgriff.Die Tourist-Information der Stadt Bad Mergentheim war von Mittag bis Nachmittag im Foyer mit diversen Broschüren gegenwärtig und stempelte die Gewinnspielkarten zur Veranstaltungsreihe „Heimat-vor-Ort“ ab. Zudem erhielt nach der Wanderung jedes teilnehmende Kind als Belohnung in der Halle eine kleine Überraschung. Die von Detlef Heidloff vorgenommenen Ausschilderungen der beiden längeren Rundwanderwege bleiben darüber hinaus dauerhaft bestehen.

Historischer Dreimärker-Grenzstein, der zusätzlich zur Gemarkungsgrenze Edelfingens die epochale Grenze zwischen Württemberg und Baden markiert.

OV Detlef Heidloff stellte zu Beginn der „West-Route“ den in bürgerschaftl. Eigenleistung angelegten Tauberstrand vor. Im Hintergrund die 2009 erbaute Tauberbrücke.

Vorstellung des Naturdenkmals „Auenwäldchen“ durch die Naturschutzgruppe Taubergrund, hier Vorstandsmitglied Elmar Patermann, auf der Familienroute.

Feierten gemeinsam mit OB Udo Glatthaar und Tourismusdirektor Kersten Hahn (4. und 5. von links) diesen Jubiläumsfesttag – die Ortsvorsteher (von links) Andreas Lehr (Markelsheim), Karin Tremmel (Rengershausen), Wilfried Zeihsel (Herbsthausen), Detlef Heidloff (Edelfingen), Siegfried Kreuser (Rot /Dörtel / Schönbühl), Hubert Scheidel (Apfelbach), Dirk Rüger (Wachbach), Rainer Blank (Löffelstelzen) sowie Björn Wirsching (Dainbach).

Lisa Wiebers von der Kreisjägervereinigung Bad Mergentheim präsentierte den Lernort „Natur-Anhänger“
(Alles Fotos: Peter D. Wagner)
22.09.2025
Umstellung der Gelben Säcke auf die Gelbe Tonne
Zum 1. Januar 2026 wird die Gelbe Tonne im Main-Tauber-Kreis eingeführt. Hierzu möchten wir Sie vorab noch entsprechend über die wichtigsten Punkte informieren.
Ansprechpartner zum Thema Gelbe Tonne ist die Firma INAST Abfallbeseitigungs GmbH, www.inast.de, Telefon 09341 858890.
Ab dem 22. September beginnt die Verteilung der Gelben Tonne. Diese wird voraussichtlich bis Ende November abgeschlossen sein.
Hierbei erhält jeder Haushalt, der vor September im Landkreis gemeldet war, die Tonne direkt vor seine Tür gestellt. Haushalte, die erst im September im Main-Tauber-Kreis angemeldet wurden, müssen die Tonnen eigenständig bei der Firma INAST Abfallbeseitigungs GmbH bestellen.
Hierfür erhalten alle Haushalte bis Anfang Oktober eine Informationsbroschüre mit allen wichtigen FAQs in die Briefkästen.
Zusätzlich haben wir hier noch die wichtigsten FAQs aufgestellt. Weitere FAQs sowie Aktualisierungen finden Sie auch auf unserer Homepage:
https://www.main-tauber-kreis.de/Landratsamt/Service/Abfallwirtschaft/Gelbe-Tonne/
Können nach dem 1. Januar 2026 auch weiterhin Gelbe Säcke bereitgestellt werden?
Nein, grundsätzlich ist kein paralleles Sammelsystem vorgesehen. Der Systembetreiber lehnt ein Mischsystem ab, da dies technisch-logistisch nicht zu bewältigen sei. Nach Einführung der Gelben Tonne werden keine Gelben Säcke mehr abgeholt. Ab dem Jahr 2026 bleiben zur Abholung bereitgestellte Gelbe Säcke liegen. Der jeweilige Haushalt ist dafür verantwortlich, die enthaltenen Leichtverpackungen über die Gelbe Tonne zur Abfuhr bereitzustellen oder sie bei einem Recyclinghof abzugeben, letzteres entweder in stabilen, transparenten Säcken oder lose in einem Gefäß, das vor Ort in den entsprechenden Container entleert wird.
Was gilt für neu hinzugezogene und wegziehende Bürgerinnen und Bürger?
Bürgerinnen und Bürger, die neu in den Main-Tauber-Kreis ziehen, müssen sich zur Bestellung einer Gelben Tonne selbst an die INAST Abfallbeseitigungs GmbH, Ernst-Bauer-Straße 4, 97941 Tauberbischofsheim, www.inast.de, Telefon 09341/858890, wenden. Das Unternehmen ist montags bis freitags von 8 bis 17 Uhr erreichbar.
Welche Größe werden die Gelben Tonnen haben?
Es stehen einheitlich 240-Liter-Tonnen oder 1100-Liter-Container zur Verfügung. Adressen, an denen bisher eine Restmülltonne (60, 80, 120 oder 240 Liter) im Einsatz ist, erhalten eine 240-Liter-Tonne. Adressen, an denen Restmüllcontainer mit 770 oder 1100 Liter Fassungsvermögen im Einsatz sind, werden mit einem Container mit 1100 Liter Fassungsvermögen ausgestattet.
Genügt eine 240-Liter-Tonne je Haushalt?
Ja. Je nach Materialart passt der Inhalt von mindestens sechs Gelben Säcken in eine 240-Liter-Tonne. Das ist in aller Regel für private Haushalte ausreichend.
Wie erkennen Sie, dass die ausgelieferte Tonne Ihre ist?
An den Tonnen werden seitlich am Korpus Barcode-Etiketten angebracht, auf denen auch die jeweilige Adresse des Standortes (Straße, Hausnummer, Postleitzahl, Ort) aufgedruckt ist. Bei Adressen mit mehreren Haushalten muss zusätzlich die ebenfalls aufgedruckte Vertragsnummer des jeweiligen Kunden beachtet werden. Diese kann dem letzten Gebührenbescheid entnommen werden. Auf dem Tonnenaufkleber ist der Vertragsnummer das Kürzel „GT“ für „Gelbe Tonne“ vorangestellt. Aus Gründen des Datenschutzes dürfen nicht die Namen der jeweiligen Tonnennutzer aufgedruckt werden.
Wie entsorge ich Verkaufsverpackungen, wenn das Volumen der Gelben Tonne zeitweise nicht ausreicht (zum Beispiel nach Feiertagen)?
Fallen mehr Verpackungen an, als im Gefäß Platz haben, können Mehrmengen in transparaten Säcken über die Recyclinghöfe entsorgt werden. Die Säcke müssen selbst beschafft werden, stabil und transparent (durchsichtig) sein, so dass die darin gesammelten Abfälle erkennbar sind. Auch können Mehrmengen lose auf den Recyclinghöfen abgegeben werden, indem sie zum Beispiel in einer Wanne gebracht werden, deren Inhalt dort in den Container für Leichtverpackungen geleert wird.
20.08.2025
Förderverein Aktives Edelfingen e. V.
Grenzwanderung, Freitag, 03. Oktober 2025
Anlässlich des Jubiläums 50 Jahre Große Kreisstadt beteiligt sich der Förderverein Aktives Edelfingen mit der Grenzwanderung, die am Freitag, 03. Oktober. 2025 durchgeführt wird, zu der wir schon jetzt alle Bürgerinnen und Bürger herzlich einladen.
Zur weiteren Planung und Vorbereitung trifft sich der Förderverein Aktives Edelfingen
am Mittwoch, 03. September 2025 um 19.00 Uhr im Rathaus Edelfingen.
Alle interessierten Bürgerinnen und Bürger, die sich aktiv an der Grenzwanderung beteiligen möchten, sind herzlich eingeladen.
Für die Edelfinger Vereine und Institutionen
Ihr Detlef Heidloff
11.08.2025
Besuch der Partnergemeinde Ste.-Marie-Du-Mont in Edelfingen

04.07.2025
Tonnenschweres Fundament für Maibaum-Ständer eingehoben
Neue Vorrichtung in Edelfingen für die größte Veranstaltung des Ortes
Bad Mergentheim. Besonderer Anblick in Edelfingen: Mit einem großen Autokran ist dort am vergangenen Freitag das 9,5 Tonnen schwere Fundament für einen neuen Maibaumständer eingehoben worden.
Die vom Gemeinderat im Haushalt bewilligte Neuanschaffung war notwendig, weil der rund 40 Jahre alte bisherige Maibaumständer Beschädigungen aufwies und das Edelfinger Maibaumfest deshalb in diesem Jahr mit einem „Mini-Baum“ auskommen musste. Das soll sich ab 2026 wieder ändern, schließlich ist das Maibaumfest nicht nur die größte Veranstaltung des Stadtteils, sondern Edelfingen ist einer der ganz wenigen Orte der Region, wo der Maibaum noch per Hand und ohne maschinelle Hilfe aufgestellt wird. Für das traditionelle Spektakel sind etwa 30 Personen erforderlich, die dafür sorgen, dass sich der rund 20 Meter lange, festlich geschmückte Maibaum zum Himmel streckt.
Ortsvorsteher Detlef Heidloff und der Edelfinger Jugendclub als Veranstalter des Festes konnten für ihr Projekt „Neuer Maibaumständer“ große Unterstützung mobilisieren: Die Firma Leonhard Weiss mit Bauleiter Elmar Rupp spendierte Zeit und Gerät, ebenso das Unternehmen Schewe Transporte. Aber auch der Jugendclub und der Ortsvorsteher selbst packten mit an. So wurde unter anderem die riesige Grube für das Fundament – unterhalb des Rathauses platziert – komplett in Eigenleistung ausgehoben. Detlef Heidloff sowie Nils Kreß und Jonas Ulshöfer von der Vorstandschaft des Jugendclubs waren auch beim Einheben vor Ort.
Alle drei freuen sich darauf, dass künftige Edelfinger Maibäume weiterhin allen Sicherheitsvorgaben entsprechend fest verankert werden und den Stadtteil sowie die Veranstaltung zieren können. Sie danken neben Unterstützern und Gemeinderat auch dem städtischen Tiefbauamt und dem Bauhof für Hilfe und Zusammenarbeit. Die neue Vorrichtung kann Maibäume mit einer Höhe von bis zu 26 Metern und einem Durchmesser bis zu 35 Zentimetern aufnehmen. Neben der Standsicherheit sorgt die schwenkbare Spannvorrichtung aus feuerverzinktem Stahl auch für mehr Sicherheit beim Aufstellen des Baumes.

Einheben des fast 10 Tonnen schweren Fundamentes für den Maibaumständer in Edelfingen mit (von links) Elmar Rupp (Leonhard Weiss), Ortsvorsteher Detlef Heidloff, Berthold Volkert (Leonhard Weiss) sowie den Jugendclub-Vorständen Jonas Ulshöfer und Nils Kreß. (Bild: Stadt Bad Mergentheim)
16.06.2025
Parksituation
Im alten Ortskern und den Baugebieten nimmt das unkontrollierte Parken immer mehr zu. Gehwege und Kurvenbereiche werden zum Teil sehr rücksichtslos zugeparkt.
Es sollte bekannt sein, dass vor Einfahrten und gegenüber von Einfahrten das Parken nicht erlaubt ist, unter anderem weil die Grundstückseigentümer behindert werden, ihr Grundstück zu befahren.
Es sollte ebenfalls bekannt sein, dass das Parken in Kurven (im Bereich von 5 Metern vor und nach der Kurve) laut StVO verboten ist. Gerade im Ortskern entstehen durch schlechte Sichtverhältnisse im Kurvenbereich gefährliche Situationen.
Es sollte bekannt sein, dass das Parken auf Gehwegen nur erlaubt ist, wenn genügend Platz für den unbehinderten Verkehr von Fußgängern gegebenenfalls mit Kinderwagen oder Rollator zur Verfügung steht.
Bekannt sollte auch sein, dass das dauerhafte Abstellen von z.B. Anhängern, Wohnwagen, abgemeldeten PKWs auf öffentlichen Parkplätzen nicht erlaubt ist.
Die aufgeführte Parksituation konnte bei einem Ortstermin mit der Verkehrsbehörde festgestellt werden. Weiter wurde festgestellt, dass ein Durchkommen von Rettungsfahrzeugen aufgrund des aktuellen rücksichtslosen Parkens nicht bzw. nur eingeschränkt gewährleistet ist.
Es wird gebeten, die geltenden Regelungen für das Parken zu beachten!
Mit diesem Aufruf bitten wir die Verkehrsteilnehmer, sich an die Regelungen zu halten. Es ist nicht in unserem Interesse zu sanktionieren.
Stellt sich in den nächsten Wochen keine Verbesserung der Situation ein, werden in unregelmäßigen Abständen Kontrollen durchgeführt und eventuelle weiter Maßnahmen zur Regelung des Parkens ergriffen.
Beachten sie bitte die Regeln, denn gegenseitige Rücksichtnahme im Straßenverkehr ist gerade in Gebieten mit hohem Parkdruck sehr wichtig.
Ortschaftsrat Edelfingen
Verkehrswesen Stadt Bad Mergentheim
16.06.2025
Verpachtung der Kegelbahn in der Turn- und Festhalle Edelfingen
Die Stadt Bad Mergentheim verpachtet die Kegelbahn in der Turn- und Festhalle Edelfingen. Interessenten werden gebeten, bis 15.07.2025 ein schriftliches Angebot bei der Verwaltungsstelle Edelfingen abzugeben. Weitere Auskünfte erteilt Herr Ortsvorsteher Heidloff in der Sprechstunde im Rathaus Edelfingen montags zwischen 17.00 – 19.00 Uhr oder nach Terminvereinbarung.
Ein Termin zur Besichtigung der Kegelbahn kann ebenfalls gerne vereinbart werden.
Tel. 07931/ 6136, detlef.heidloff@bad-mergentheim.de
16.05.2025
50 Jahre Große Kreisstadt Bad Mergentheim

Zu den einzelnen Veranstaltungen der Ortsteile liegt bei der Verwaltungsstelle Edelfingen ein Flyer bereit.
12.05.2025
Tempo 30 in der Ortsdurchfahrt Edelfingen wird eingerichtet
Die Stadt Bad Mergentheim kündigt die Einführung von „Tempo 30“ in der Ortsdurchfahrt Edelfingen auf der Bundesstraße 290 an.
Bereits in der März-Sitzung des Gemeinderates war im Zuge der Verabschiedung der 4. Runde des Lärmaktionsplanes die Geschwindigkeits-Reduktion in Edelfingen in Aussicht gestellt worden. Inzwischen haben alle verantwortlichen Stellen grünes Licht gegeben und die Stadt als Untere Straßenverkehrsbehörde hat die entsprechende Anordnung erstellt. Mit dem Aufstellen der Schilder, womit voraussichtlich ab dieser Woche (Kalenderwoche 20) begonnen wird, tritt die Neuregelung in Kraft.
Die Stadtverwaltung erläutert zu diesem Thema, dass es sich hier einerseits um einen seit langem bestehenden Wunsch handele, andererseits aber auch die Gesetzeslage und Ergebnisse der Lärmaktionsplanung nun zum Handeln zwingen würden. Der Wunsch ist vor allem aus der betroffenen Ortschaft heraus immer wieder unterstrichen worden: Die Entlastung durch Tempo 30 strebt der Ortschaftsrat seit vielen Jahren an und sie war über Jahre wiederkehrendes Thema, beispielsweise in der 3. Runde des Lärmaktionsplanes bei Stadtteil-Rundgängen mit Oberbürgermeister Udo Glatthaar.
Die Stadt Bad Mergentheim hatte bereits mit früheren Verfahren zur Lärmaktionsplanung eine Anpassung der Höchstgeschwindigkeit auf maximal 30 Stundenkilometer umsetzen wollen. Sie scheiterte jedoch zunächst am Regierungspräsidium Stuttgart, das die dafür notwendige Genehmigung nicht erteilte.
Mit veränderten Erlassen auf Seiten der Gesetzgebung und dem Fortgang der Lärmaktionsplanung darf und muss die Stadt als Untere Straßenverkehrsbehörde jetzt tätig werden. Lärmwerte von mehr als 65 Dezibel am Tag und 55 Dezibel in der Nacht gelten als gesundheitskritische Belastung. In Edelfingen sind 41 Wohngebäude betroffen, wo diese Grenzwerte – teils deutlich – überschritten werden.
Die rund 800 Meter lange Ortsdurchfahrt wird künftig am Tag und in der Nach mit maximal 30 Stundenkilometern befahrbar sein. Auf die Leistungsfähigkeit einer Hauptverkehrsstraße hat die Senkung der Höchstgeschwindigkeit keinen nennenswerten Einfluss, dies wurde vorab durch die Planungen im Stadtbauamt detailliert untersucht. Erwiesen ist dagegen die spürbare Minderung des Lärmpegels. An der Vorfahrts-Regelung (zugunsten der Hauptverkehrsstraße) ändert sich nichts.
Abschließend verweist die Verwaltung darauf, dass die Nachbarkommune Lauda-Königshofen im Stadtteil Königshofen ebenfalls Tempo 30 in der Ortsdurchfahrt einführt. Damit kann sich die Neuerung in der Verkehrsführung auf der B 290 einheitlich einspielen.
14.04.2025
Der neue Jugendraum für Edelfingen nimmt Gestalt an Holzanbau an der Turn- und Festhalle für den sehr aktiven „EJC“
Edelfingen. Auf der Tauber-Seite der Edelfinger Turn- und Festhalle entwickelt sich derzeit eine kleine, aber feine Holz-Konstruktion: Hier baut die Stadt Bad Mergentheim den neuen Jugendraum für ihren zweitgrößten Stadtteil.
Damit bekommt der Edelfinger Jugendclub, kurz „EJC“, eine neue Heimat. Denn im Zuge der Entwicklung des Schul- und Kindergarten-Campus am Taubergrund mussten die Jugendlichen ihr bisheriges Domizil im Schulgebäude aufgeben. Seitdem sind sie – mehr schlecht als recht – in Containern untergebracht.
Umso größer ist die Freude bei Ortsvorsteher Detlef Heidloff, wenn er dieser Tage die Baustelle an der Turn- und Festhalle besucht. „Der Jugendclub ist einer der aktivsten Vereine im Ort und bekommt mit dem neuen Holzmodulbau ein ansprechendes und funktionales neues Zuhause an einem sehr gut geeigneten Standort“, sagt Detlef Heidloff. Hier sei der Club mittendrin im Zentrum des Edelfinger Vereinslebens und gleichzeitig werde mit der Ausrichtung gen Tauber eine Lärmbelästigung für Anwohnerinnen und Anwohner vermieden.
Der neue Jugendraum ist eine Holzmodul-Konstruktion mit Pultdach in Nagelplattenbinder-Tragkonstruktion. Der Anbau steht auf Stelzen und ragt so in den flussseitigen Hang hinein. Im rund 90 Quadratmeter großen Innenbereich ist der Clubraum mit Theke das Herzstück, dazu entstehen ein Abstell- und Lagerraum sowie Toiletten. Im weiteren Baufortschritt wird auf dem Dach noch eine Photovoltaik-Anlage installiert.
„Der Jugendclub freut sich auf sein neues Domizil, da wir damit unseren Mitgliedern und Besuchern endlich wieder passende und ansprechende Räumlichkeiten bieten können. Auch freuen wir uns, dass nach all der Planungszeit die Arbeiten nun begonnen haben und es die ersten größeren Fortschritte zu sehen gibt“, sagt Nils Kreß vom Vorstand des Edelfinger Jugendclubs.
Der Abschluss der Bauarbeiten ist für Sommer terminiert. Die Stadt Bad Mergentheim investiert in den neuen Jugendraum Edelfingen rund 552.000 Euro. Oberbürgermeister Udo Glatthaar sieht darin ein wichtiges Signal, „mit dem die Stadt ihr starkes Engagement in allen Teilorten und für alle Generationen unterstreicht“. Sein herzlicher Dank gilt dem Jugendclub, der im vergangenen Jahr 50-jähriges Bestehen feiern konnte, für die starken und vielfältigen Aktivitäten sowie das Durchhalten in den Provisorien der vergangenen Jahre. stv

Über den Baufortschritt beim neuen Jugendraum für Edelfingen freuen sich (von links) Martin Freitag (Aeckerle Holzbau), Planer und Architekt Max Ertel und Ortsvorsteher Detlef Heidloff. (Bild: Stadt Bad Mergentheim)
08.04.2025
Müllsammelaktion 2025 – Alle machen mit!
In diesem Jahr wurde nach längerer Pause am Samstag, den 05. April 2025 wieder eine Müllsammelaktion in Edelfingen durchgeführt. Startpunkt war der Dorfplatz.
Bei der diesjährigen Müllsammelaktion wurden zahlreiche achtlos weggeworfene Abfälle und Müll von den vielen fleißigen kleinen und großen Helfern eingesammelt. Neben dem üblichen Plastikmüll, Dosen, Glasflaschen und Altreifen wurde auch richtig umweltschädigender Müll illegal entsorgt. Im Bereich der Wilhelm-Frank-Straße wurden Ölfilter und Altöl entsorgt. Dies ist besonders ärgerlich, nicht nur weil die Umwelt dadurch nachhaltig geschädigt wird, sondern auch weil es sich dabei um einen recyclebaren Rohstoff handelt. Obwohl jeder eine Mülltonne zu Hause hat, ist es unverständlich, wenn Hausmüll illegal in der Umwelt entsorgt wird. Die Kosten für die Entsorgung illegaler Müllablagerungen trägt die Allgemeinheit.
Die Fragen der kleinen Helfer, warum Menschen ihren Müll einfach wegschmeißen, sind nicht einfach zu beantworten. Dafür ist keine Erklärung zu finden, gibt es doch genug Möglichkeiten, seinen Müll kostengünstig legal zu entsorgen.
Das rücksichtslose und egoistische Verhalten der Umweltsünder stieß bei den freiwilligen Helferinnen und Helfer auf absolutes Unverständnis.
Erfreulich ist, dass im Vergleich zu den in der Vergangenheit durchgeführten Müllsammelaktionen die Menge etwas abgenommen hat.
Zurück am Dorfplatz bedankte sich Ortsvorsteher Detlef Heidloff bei allen Helfern für ihr Engagement. Im Anschluss gab es für alle Helfer als Dankeschön eine kleine Stärkung im Bürgersaal des Rathauses Edelfingen.







Bilder: Detlef Heidloff
Helferinnen und Helfer (einige fehlen, da sie direkt zum Stadtlauf gegangen sind)
17.03.2025
Der Eiswagen kommt wieder nach Edelfingen

01.10.2024
Bolzplatz mit Outdoor-Fitness-Geräten ausgestattet
Auf dem Bolzplatz neben dem neuen Sportplatz wurden verschieden Sportgeräte aufgestellt, die das ganzheitliche Training verschiedener Muskelgruppen ermöglichen.
Beintrainer:
Verbessert die Balance, Koordination und Flexibilität. Durch die Übungen wird die Beinmuskulatur gestärkt.
Oberkörpertrainer in zwei Ausführungen:
Trainiert die Ausdauer. Durch die Übungen werden die Muskelgruppen der Brust, der Arme, des Rückens und des Bauches gestärkt und die Körperhaltung wird verbessert.
Stufenreck:
Typische Übungen am Reck sind Felgaufschwung, Kippe, Felgumschwung, Riesenfelge oder Kontergrätsche.
Slackline:
Beim Slacklinen balanciert man auf einem etwa fünf Zentimeter breiten Gurt, welcher etwa in Kniehöhe über dem Boden zwischen zwei Fixpunkten gespannt wird. Dies fördert die Balance, Konzentration und Koordination.
Basketballkorb:
Heute sind sich Sportwissenschaftler einig, Basketball fördert Reaktionsschnelligkeit, Ballgefühl, Orientierung, Konzentration sowie Geschicklichkeit. Die vielen Sprints verbessern Ausdauer und Koordination. Das Werfen trainiert die Arm-, Schulter-, Bein- und Po-Muskulatur.
Tischtennisplatte:
Tischtennis ist ein äußerst gesunder Sport, der vielfältige Vorteile bietet. Ganzheitliche Gesundheitsförderung für Körper und Geist. Effektives Training für Herz-Kreislauf-System, Koordination und kognitive Funktionen und ist Gelenkschonend.
Mit den neuen Geräten besteht für Jung und Alt die Möglichkeit, sich fit zu halten.
Als dann, los geht´s zum Fitnesstraining auf den Bolzplatz.





24.07.2024
Pressetext der FN vom Mittwoch, 24.07.2024:
Detlef Heidloff soll wieder Ortsvorsteher werden
Ortschaftsrat Edelfingen: Silke Karl-Ulshöfer und Günther Hofmann wurden verabschiedet
Edelfingen. Die konstituierende Sitzung des Ortschaftsrats Edelfingen fand am Montag im Sitzungssaal im Rathaus Edelfingen statt. Ortsvorsteher Detlef Heidloff verabschiedete die bisherigen Ortschaftsräte Silke Karl-Ulshöfer und Günther Hofmann und bedankte sich für ihr Engagement. Günther Hofmann kam als Nachrücker im März 2023 ins Gremium. Silke Karl-Ulshöfer gehörte dem Ortschaftsrat seit September 2009 an. Heidloff bedankte sich beim Ortschaftsrat für die gute und vertrauensvolle Zusammenarbeit in den letzten fünf Jahren, die deutlich machen, dass Edelfingen eine aufstrebende Gemeinde ist, so Heidloff in einem kleinen Rückblick. Vieles sei erreicht worden, wofür der Ortsvorsteher Ortschaftsrat, Gemeinderat und Stadtverwaltung dankte.
Größtes Bauprojekt seit der Eingemeindung war der Campus Am Taubergrund mit Taubergrundschule Edelfingen und Kita Am Taubergrund Edelfingen mit offizieller Einweihung im Mai 2023. Die Kita sei nach eineinhalb Jahren mit 95 Kindern voll belegt. Eine Erweiterung um eine altersgemischte Gruppe im alten Volksbankgebäude, das von der Gemeinde erworben wurde, sei auf den Weg gebracht. Der Start soll nach den Sommerferien mit sieben Kindern erfolgen, restliche freie Plätze seien angefragt.
Die Taubergrundschule startet in das Schuljahr 2024 /2025 mit über 100 Schülerinnen und Schülern – erstmals in der Geschichte der Grundschule mit zwei ersten Klassen.
Die Baugebiete Bandhaus IV Teil 1 und 2 seien erschlossen. Fast alle Bauplätze seien abverkauft und bebaut. Einzelne wurden zurückgegeben, auch ein Bauplatz für Geschosswohnungsbau stehe wieder zum Verkauf.
Gänswiesle und Liegewiese an der Tauber seien mit Mitteln der Stadt in Eigenleistung fertigestellt worden – ein Anziehungspunkt für Bevölkerung und Radfahrer, der Eiswagen komme zweimal die Woche.
Detlef Heidloff wurde für die vierte Amtszeit vom Ortschaftsrat gewählt. Seine Stellvertreterin soll Kim Linsenmayer für die zweite Amtszeit werden. Neu im Ortschaftsrat sind Mareike Fading und Mirjam Ulshöfer.
Ortsvorsteher Heidloff gab noch einen Ausblick zu den anstehenden Aufgaben in der Zukunft: Für flankierende Maßnahmen der Landesgartenschau müssen jetzt die Weichen gestellt werden. Hauptziel sei die Verkehrsberuhigung in der Theobaldstraße. Dazu sei eine Ortschaftsratssitzung am 11. September mit Bürgerbeteiligung geplant. Heidloff nannte auch die Umsetzung des Lärmaktionsplans, als erste Maßnahme soll der Lärmschutz auf der Friedhofsmauer ausgeführt werden, wenn alles gut gehe, noch im Jahr 2024.
Da Edelfingen die nördliche Zufahrt zur Kernstadt ist und mit der Landesgartenschau mit einer Steigerung der Verkehrsbelastung zu rechnen sei, sei das Stadtentwicklungskonzept beziehungsweise der Lärmaktionsplan eine große Chance für Edelfingen, die Probleme in Angriff zu nehmen und Lösungen zu erarbeiten.

Vorne von links: Jutta Barleon, Stephan Bug, OV Stellvertreterin Kim Linsenmayer, Jörg Reutter, Ortsvorsteher Detlef Heidloff; Hinten von links: Mirjam Ulshöfer, Stefan Ulshöfer, Karin Stephan, Timo Ulshöfer, Ingo Hübner; Es fehlt Mareike Fading
24.06.2024
Liegewiese an der Tauber
Nachdem die erste Jahreshälfte sehr feucht ausgefallen ist, war es leider nicht möglich die noch ausstehenden Arbeiten zur Fertigstellung der „Liegewiese an der Tauber“ zügig durchzuführen.
Jetzt ist es endlich so weit, der Sommer kann kommen.
Die „Liegewiese an der Tauber“ wurde mit Sitzgelegenheiten ausgestattet. Für die Besucher stehen zwei Liegen und eine Baumelbank zur Verfügung. Auf den Liegen kann man sich vom Stress des Alltags erholen, während man auf der Baumelbank Beine und Seele baumeln lassen kann. Gleichzeitig werden Knie und Gelenke wohltuend entlastet. Beide Sitzgelegenheiten bieten zudem noch eine wunderschöne Aussicht, die weitere Erholung verspricht.
Mit Gänsewiesle plus Bouleplatz und der Liegewiese an der Tauber steht den Edelfingern, Radfahrern und Allen die dort vorbeikommen eine schöne Gelegenheit zur Entspannung zur Verfügung.
Ein dickes Dankeschön gebührt allen freiwilligen Helfern, unserem Bauhofmitarbeiter, dem Bauhof Bad Mergentheim und allen die zum Gelingen beigetragen haben. Ein großer Dank gilt auch dem Gemeinderat und der Stadtverwaltung, die durch ihre Zustimmung, Mittel aus dem Bürgerbudget bereitzustellen, es erst ermöglicht haben, das Projekt „Liegewiese an der Tauber“ zu realisieren.
Ihr Detlef Heidloff, Ortsvorsteher

22.05.2024
Anregungen und Wünsche dem Oberbürgermeister beim Ortsrundgang vorgetragen
Zu einem Ortsrundgang mit dem Oberbürgermeister Udo Glatthaar hatte Ortsvorsteher Detlef Heidloff die Bürger von Edelfingen eingeladen. Eine ansehnliche Zahl interessierter Bürger fanden sich dazu am Startpunkt des Ortrundganges am Friedhof ein.
Ortsvorsteher Heidloff begrüßte neben den Edelfingern und den OB auch den Wirtschaftsförderer Dr. Tim Schnyder, der sich anschließend vorstellte. OB Glatthaar freute sich in seiner Begrüßung nach der Corona-Pause wieder vor Ort sein zu können. Den Startpunkt des Rundganges im Friedhof bezeichnete er als symbolhaft in einer Zeit wo wieder Kriege, Wirtschaftsprobleme, Klimaveränderung und vieles mehr die Gesellschaft beunruhigen. Einmal mehr gelte es die Vorteile einer demokratischen Gesellschaft, in der der Mensch im Mittelpunkt steht, auch künftigen Generationen zu erhalten. Er freue sich auf die Themen, die von den Bürgern angesprochen werden.
OV Heidloff ging zunächst auf den seit Jahren angemahnten Lärmschutz für den Friedhof ein, der vom Lärm der nahen und stark befahrenen Bundesstraße verursacht werde. Da die notwendigen finanziellen Mittel im Haushalt bereitgestellt sind, müsse die Maßnahme noch in diesem Jahr realisiert werden. OB Glatthaar verwies darauf, dass das zuständige Bauamt aufgrund viele laufender Projekte personell stark in Anspruch genommen sei, versprach aber das Problem schnellst möglich zu lösen. Mit dazu beitragen, könne eine Reduzierung der Geschwindigkeit der Autos auf der Bundesstraße auf 30 oder 40 km/h, für die nach neuester Rechtslage die Große Kreisstadt zuständig ist. Die erstellten Lärmgutachten seien notwendig, um Fördergelder für entsprechende Maßnahmen zu erhalten. Für ihn sei am wirkungsvollsten allerdings das Fernziel, eine Umgehungsstraße in Zusammenarbeit mit den angrenzenden Taubertalgemeinden zu bauen.
Nächste Station war der Einmündungsbereich der Theobaldstraße in die B 290. Dort steht seit einiger Zeit ein Imbisswagen eines Anliegers, der damit den „Edelfinger Grill“ betreiben will. Die Parkplatzfrage sei zwar geklärt, so OV Heidloff, aber für den Fußgängerschutz sollten zwischen Gehweg und Straße Pfosten eingebaut werden. An der Kreuzung Theobaldstraße/ Mittlere Straße zeigte OV Heidloff dem begleitenden Wirtschaftsförderer ein seit vielen Jahren leerstehendes, ehemals landwirtschaftlich genutztes Haus und Grundstück, das einen Käufer oder einen Investor suche. Für die stark frequentierte Theobaldstraße spricht sich der Oberbürgermeister dafür aus, unnötigen Verkehr, vor allem Durchgangsverkehr zum Industriegebiet Abelt und dem Riedpark, von der Straße wegzubringen. Im Rahmen der Landesgartenschau und dem Stadtentwicklungsplan 2040 sollen auch in den Stadtteilen flankierende Maßnahmen durchgeführt werden, die vor allem die Ortskerne attraktiver machen. Hierzu seien Anregungen der Bürgerschaft erwünscht. Erfreulich und mutig sei für den OV, wenn junge Menschen alte Gebäude im Ortskern aufkaufen, diese sanieren oder erneuern. Dazu gebe es neben verschiedenen Förderprogrammen auch Zuschüsse von der Stadt, ergänzte der OB und wies darauf hin, dass die Zuwachsraten von Bürgern mit Kindern auch weitere Strukturmaßnahmen erfordern. Dazu zählt auch der Kauf des ehemaligen Volksbankgebäudes, das zurzeit für die Unterbringung einer Kindergartengruppe umgebaut werde. Am Rathausplatz zeigte OV Heidloff einige positive Beispiele über die Entwicklung Edelfingens in jüngster Vergangenheit auf. Dazu zählen neben der Umgestaltung des ehemaligen Volksbankgebäudes die umfassende Renovierung des Feuerwehrgerätehauses, die anstehende Ausstattung mit einem neuen Feuerwehrauto und die Schaffung des Campus am Taubergrund. Er ergänzte, dass künftig die im Voba-Gebäude untergebrachten Kinder zum Mittagessen und zur Nutzung des Spielplatzes sich zum Campus begeben müssten. OB Glatthaar verwies darauf, dass die Unterbringung von Löffelstelzer Kindern in den Edelfinger Bildungseinrichtungen nicht fest zementiert sei. Bei Eigenbedarf für Edelfinger Kinder müsse man für den Löffelstelzer Nachwuchs nach anderen Möglichkeiten suchen. Am Kreuzungspunkt des Taubertalradweges mit der Theobaldstraße war wieder die unbefriedigende Verkehrssituation dieser Straße Diskussionsthema. OV Heidloff regte mit einem kühnen Vorschlag eine Lösung an. Der Radweg sollte von Unterbalbach kommend gleich an der Ortsgrenze auf ein noch zu bauendes Teilstück zwischen Noba-Gebäude und der Tauber geleitet und kurz vor der Tauberbrücke wieder auf den neuen Radweg entlang der Tauber Richtung Kernstadt geführt werden. Der OB nahm dies zur Kenntnis.
Bei der anschließenden Aussprache im Sportheim lobte der Oberbürgermeister die Edelfinger für ihr sauberes Straßenbild. Zu dem immer wieder auftauchenden Wunsch nach der Sanierung von Straßen entgegnete er, dass derzeit die Schaffung und Instandhaltung von Infrastruktureinrichtungen im Vordergrund stehe. Zum Dauerthema Theobaldstraße wolle er erst einmal abwarten, wie sich die Schaffung eines Beipasses am Herrenwiesenkreisel in Richtung Riedpark auswirke. Dann könnte man einen alten Vorschlag, die Wilhem-Frank-Straße für den Verkehr Richtung Edelfingen zu sperren einmal probeweise folgen, was aber auch für die Edelfinger Nachteile mit sich bringe. Interessant war die Antwort des OB auf die Frage eines Bürgers, was mit dem Gelände des Wertstoffhofes nach dessen Verlagerung in den Braunstall geschehe. Hierzu der OB, das Gelände solle dann der kreisweiten Wasserstoffallianz zur Verfügung gestellt werden, um an einem Modellprojekt des Bundes teilnehmen zu können. U. a. könne dort eine Wasserstofftankstelle für Busse und LKW eingerichtet werden und die Abwärme der Produktion für umliegende Industriefirmen und der bei der Bildung von Wasserstoff freigesetzte Sauerstoff für die Kläranlage verwendet werden. Er betonte dabei, dass für die Ansiedlung von Betrieben neben einer ausreichenden Breitbandverkabelung das Vorhandensein von grüner Energie ein wichtiges Entscheidungskriterium sei. Im weiteren Verlauf wurde noch die Wärmeplanung, die lt. OB abgeschlossen ist, angesprochen, sowie die Festsetzung des künftigen Grundsteuerhebesatzes, der wohl erst 2025 festgelegt wird. Weitere Diskussionspunkte waren der schleppende Breitbandausbau der BBV/Toni und ein notwendiges Starkregenmanagement, für das noch eine Konzeption erstellt werden muss.
WM

Ein heißes Thema beim Ortsrundgang mit OB Glatthaar, an dem sich ca. 30 Edelfinger Bürger beteiligten, waren Lärmschutzmaßnahmen gegen den heftigen Verkehrslärm der stark befahrenen B 290 insbesondere bei Beerdigungsfeiern. Foto: W. Mies
03.05.2024
Spannende Einblicke in den Theobald-Distrikt-Waldbegang in Edelfingen mit neuem Revierleiter Timo Renz
Bad Mergentheim. Rund 25 interessierte haben in Edelfingen einen vom neuen Revierleiter Timo Renz geführten Waldbegang im Distrikt „Theobald“ unternommen und spannende Einblicke gewonnen.
Eingeladen hatte der Ortschaftsrat des Stadtteils. Ortsvorsteher Detlef Heidloff begrüßte die Gruppe, freute sich über das Interesse und wies darauf hin, dass der Wald „der bedeutendste Klimaschützer Deutschlands für die nachfolgenden Generationen“ sei. Deshalb müsse er erhalten und geschützt werden. In diesem Zusammenhang erwähnte Detlef Heidloff auch den Gemeinderatsbeschluss zum nachhaltigen Waldumbau.
Timo Renz stellte sich als neuer Revierleiter für das Forstrevier Bad Mergentheim Nord vor. Der 41-Jährige trat zum 1. Juli 2023 die Nachfolge von Eugen Blank an. Timo Renz arbeitete in den vergangenen neun Jahren als Revierleiter und Geschäftsführer für die Forstbetriebsgemeinschaft Würzburg. Er erklärte zum Auftakt des Rundgangs, dass der Wald auch ein Spiegel in die Vergangenheit sei. Es gebe viele Hinweise auf vergangene Zeiten zu entdecken.
Unter diesem Motto ging es zur ersten Station: Nur wenige Hundert Meter hinter dem Waldeingang hatte Timo Renz in einer etwa 35 Jahre alten Pflanzung einzelne junge Eichen und Spitzahorne mit einem roten Band versehen. Der Förster erläuterte an diesem Beispiel die unterschiedlichen Wuchsdynamiken der Bäume. Er betonte die besondere Rolle der Eiche beim jetzigen, aber auch beim zukünftigen Waldaufbau. Ohne die Hilfe des Menschen sei die Eiche an vielen Standorten der Buche, aber auch anderen Baumarten deutlich unterlegen.
Timo Renz verwies hierzu auch auf den letzten Exkursionspunkt. Den Bäumchen mit dem roten Band soll im Herbst bei der Konkurrenz gegen ihre „Nachbarn“ geholfen werden, indem einige dieser Bäume entnommen werden. Das Ziel der Maßnahme sei nicht nur die Sicherung der Mischungsanteile. „Der zügige Ausbau der Krone in den ersten 30 bis 80 Jahren – je nach Baumart – ist eine wichtige forstliche Maßnahme, um stabile Bäume zu erziehen und den vollen Holzzuwachs auszunutzen“, erläuterte der Revierleiter.
Weiter ging es querfeldein durch den Jungwald bis zu einem Waldstück mit 70 bis 90-jährigen Fichten. Viele der Bäume sind um die 40 Zentimeter dick. Das Produktionsziel sei hier weitgehend erreicht. Sollten die Bäume im Herbst noch gesund sein, mache es Sinn sie zu ernten. Allerdings sei die Ernteentscheidung auch immer vom Holzmarkt abhängig. Dieser sei oft schwierig einzuschätzen, da die Holzpreise teils stark schwanken würden. Renz zeigte eine frisch vom Borkenkäfer befallene Fichte und wie der Befall erkannt werden könne. Er wies auf das austretende, braune Bohrmehl und die schüttere Krone: „Dieser Baum muss in den nächsten vier Wochen aufgearbeitet werden, bevor die Jungkäfer ausfliegen.“
Auf dem Weg zum letzten Punkt ging es durch einen Teil ehemaligen Privatwalds, der durch die Waldbereinigung zum Stadtwald hinzugekommen ist. Auch hier lassen sich die Konkurrenzverhältnisse der Bäume untereinander gut beobachten, so Timo Renz. Eine Besonderheit seien die vielen Walnussbäumchen, die sich im Edelfinger Wald ansiedeln – vor allem durch die angrenzenden Nussbäume auf der Flur. Von dort werden sie von fleißigen Helfern wie Vögeln oder Eichhörnchen angesiedelt. „Die Walnuss ist ein dürrefester Baum mit wertvollem Holz, wir sollten sie da, wo es möglich ist, am Waldaufbau beteiligen“, meint Timo Renz.
Am letzten Punkt angekommen erklärte er den für Herbst geplanten Holzeinschlag in einem rund drei Hektar großen Gebiet. Hier sollen Altbuchen gefällt werden, um Platz für die neue Generation zu machen. Eichen sollen keine fallen. Diese seien noch nicht dick genug. Vielmehr sollen die Buchen, die den Eichen in die Krone wachsen, entnommen werden, um die Eichenkronen freizuhalten.

20.09.2023
Liegewiese an der Tauber entsteht
Am Edelfinger Tauberufer, oberhalb der Tauberbrücke und direkt am Taubertalradweg, entsteht die „Liegewiese an der Tauber“. Gegenüber dem Rastplatz „Gänswiesle“ wird zurzeit eine Liegewiese hergerichtet.
Schon 2021 gab es erste Planungen und Anträge, doch der Weg durch die Instanzen dauerte. Im April dieses Jahr kam dann die Zustimmung des Umweltamtes im Landratsamt Main-Tauber. Zwischendurch wurden ca. 60 Tonnen Kalkblocksteine gekauft, die im Übrigen, wie auch andere notwendige Ausgaben über einen Zuschuss aus dem Bürgerbudget finanziert wurden.
Die vier Edelfinger Elmar Rupp, Jonas Kroh, Markus Kleinhans und Ortsvorsteher Detlef Heidloff packten in ihrer Freizeit tatkräftig an und sicherten bzw. stützen das Tauberufer mit den gewaltigen Steinblöcken ab. Dazu standen ihnen ein Großbagger und ein Lkw der Fa. Leo Weiß zur Verfügung. Außerdem wurde viel Erde bewegt, um das dahinter liegende Gelände einzuebnen und zu planieren. Die Freiwillige Feuerwehr beteiligte sich im Rahmen einer Übung mit der Verfestigung und Einschlämmung der Mauerfugen ebenfalls am Entstehen dieser Freizeiteinrichtung. In den nächsten Tagen werden dann Mitglieder des Ortschaftsrates die notwendige Humusschicht auf das Gelände verteilen und bei geeigneter Wetterlage wird der Rasensamen ausgesät. Bis zur kommenden Saison hofft OV Heidloff darauf, noch entsprechende Sitzmöglichkeiten und Liegen beschaffen zu können, damit diese ortsnahe Freizeitanlage auch einen gewissen Komfort aufweist. Zusammen mit dem gegenüberliegenden Rastplatz, der sehr von Edelfingern, Passanten und Radfahrern frequentiert wird, bietet Edelfingen mit dem neugeschaffenen naturnahen Platz eine weitere Attraktivität, die auch gut in das Landesgartenschauthema „Tauber erlebbar machen“ passt.
















Kontakt
Verwaltungsstelle Edelfingen
Ratsstraße 2, 97980 Edelfingen
Telefon 07931 / 6136
Fax 07931 / 482696
vwst_edelfingen@bad-mergentheim.de
